产品介绍
针对地铁站台两端司机位监视屏的独特安装环境与防护需求,我公司推出的专用护罩产品,以高度的环境适应性、稳固的安装特性及人性化设计,展现了其卓越的创新型、实用型与科技型价值。
在创新型上,产品突破了固定场景的安装限制,独创了兼容“吊杆与立杆”的双模式安装架构。该设计允许根据站台顶部的结构条件或现场管线布局,灵活选择安装方案,无需对土建结构进行大规模改造,实现了从“环境适应产品”到“产品适配环境”的理念升级,有效解决了站台末端位置复杂多变的应用难题。
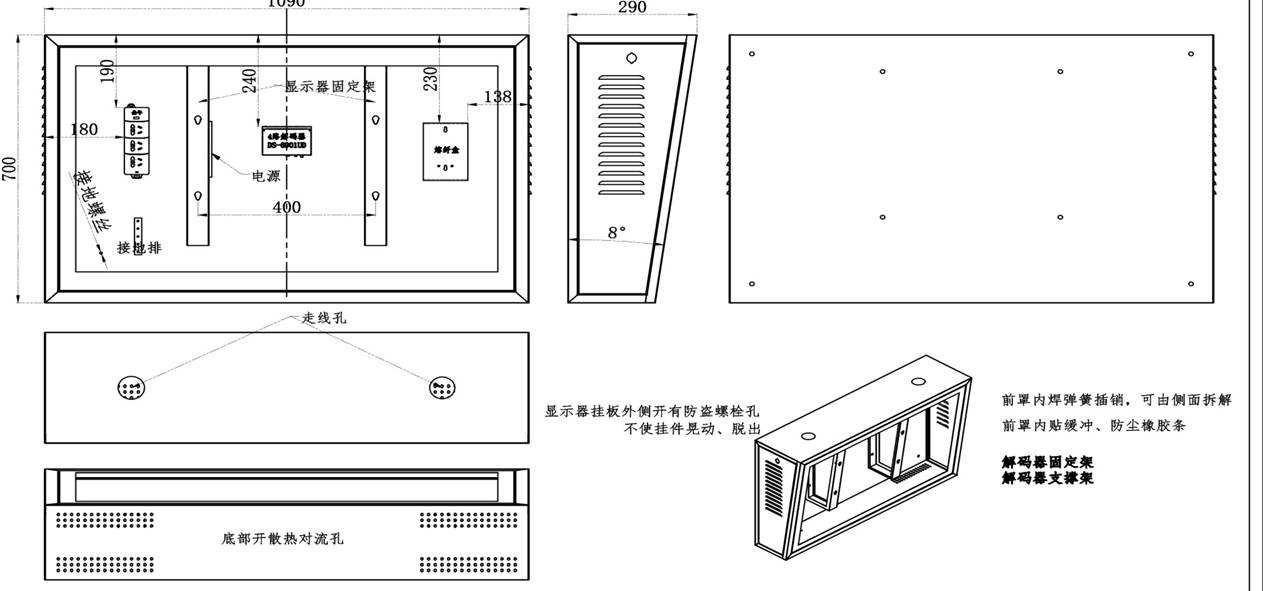
在实用型上,护罩设计始终围绕运维便利与操作便捷的核心。其安装接口均经过标准化与预置化处理,支持快速装配,大幅缩短了施工窗口期。护罩本体在提供全面物理防护的同时,特别考虑了司机的观察视角,确保无视觉死角,并预留了必要的线缆接口与散热空间,实现了防护功能与操作体验的高度统一。
在科技型上,我们运用有限元分析技术对护罩结构与安装支架进行了动态载荷与抗振仿真优化,确保其在列车频繁进出站带来的振动环境中长期保持稳固。护罩表面采用特殊的耐腐蚀与抗紫外线处理工艺,能够抵御站内复杂的大气环境,保证产品在长期使用下的外观完整性与防护性能,延长了设备全生命周期。
该产品已成功应用于合肥地铁1号线等项目,其可靠性得到了充分验证,成为保障地铁站台安全监控系统稳定运行的关键装备。
